Description de l'offre
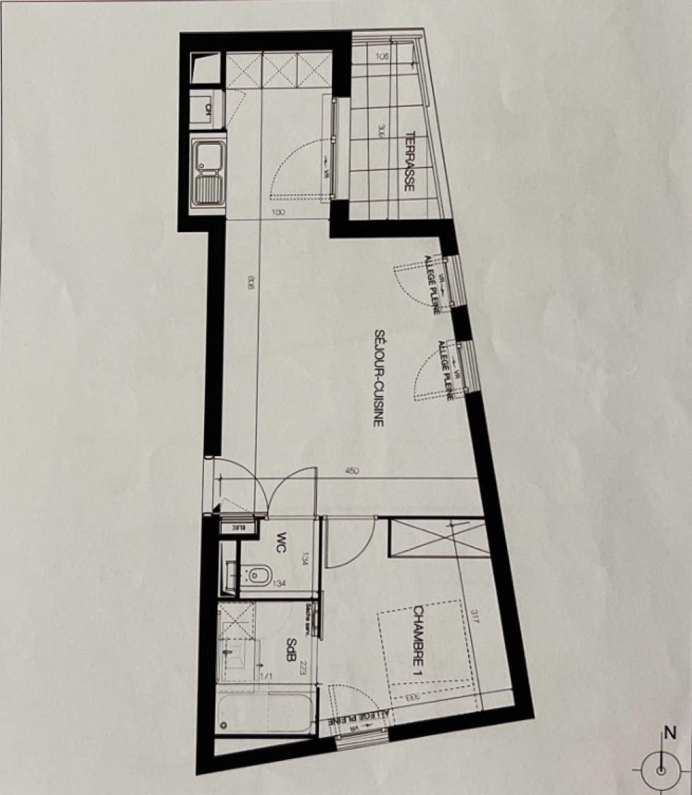
EXCLUSIVITE PORT MARIANNE - RICHTER / HOTEL DE REGION – Superbe Appartement dans immeuble de 2016, T2 de 43m² au DERNIER ETAGE avec une TERRASSE de 5m² offrant une VUE DEGAGEE et un GARAGE en sous-sol. Il comprend une belle pièce à vivre LUMINEUSE de 27m² avec une cuisine américaine semi-équipée, une terrasse de 5m² exposée EST offrant une VUE DEGAGEE sans vi sà vis, une suite de 14m² avec sa salle de bain, un wc séparé le tout au 3ème et dernier étage afin de profiter au calme et sans aucun vis à vis de la vue dégagée entre parc privée et ville. Prestations PREMIUM : menuiseries double vitrage, volets roulants électriques, cuisine semi-équipée, visiophone, chauffage au gaz, fibre, … Dans un quartier agréable et bien fréquenté, à proximité immédiates des commerces, des écoles et des transports et axes routiers vers plages et villes. FAIBLE CHARGE, FAIBLE TAXE FONCIERE, TRES BIEN FREQUENTE PROXIMITE IMMEDIATE DES COMMERCES IDEAL LOCATIF OU JEUNE COUPLE CONTACT : Mr martin pierrick 07 86 85 18 52 AXE IMMOBILIER.
